Description
Kullanılabilir su kaynaklarının bu kadar az olmasına karşın, su tüketim oranları hızla artmaktadır. Buna bağlı olarak insanlar ileride susuz kalma riskiyle karşı karşıyadır. Bu riski azaltmanın yolu mevcut kaynakların verimli kullanılmasından geçmektedir. Bu kapsamda, su tüketim oranlarının düşürülmesine ilişkin yöntemlerin belirlenmesi ve sürdürülebilir su ve atık su yönetimi için su tasarrufu modellerinin geliştirilmesi gerekmektedir.
Gri Su Nedir?
Gri su arıtma sistemleri; foseptik atığı içermeyen duş, küvet ve lavabolardan gelen az kirli evsel atık suların membran teknolojileri yardımıyla arıtılarak rezervuar beslemesi, bahçe sulama, araç yıkama, kaba temizlik vb. içme suyu kalitesinde olması gerekmeyen alanlarda kullanılan sistemlerdir.Gri su; sabun, şampuan, detarjan, saç, vücut yağı, deri parçaları, tırnak vb. organik atıkları içermektedir.
Gri sular az kirli ve çok kirli gri su olarak iki ayrı şekilde değerlendirilebilmektedir. Az kirli gri su duş, banyo ve lavabodan gelen atık suları, çok kirli gri su ise mutfak ve çamaşır makinesinden gelen atık su içermektedir.
Gri Su Geri Kazanım Sistemlerinin Faydaları
- Doğal su kaynaklarının gereksiz tüketimini düşürerek çevrenin korunmasına büyük katkı sağlar.
- Yerinde arıtımı yapılan gri su kanalizasyona deşarj edilen sudan ayrılacağı için belediyelere arıtılmak üzere giden atık suyun hacmi azalır ve su arıtımı için gereken yatırım maliyeti de buna paralel olarak düşer.
- Arıtılmış gri su, şebeke suyu kullanım oranlarını düşüreceğinden dolayı, şebeke suyu dağıtım maliyetlerini de düşürür.
- Şebeke suyundan %40’a varan tasarruf sağlar.
- Özellikle kurak bölgelerde bitki yetiştirme ve bahçe sulama için önemli bir kaynaktır.
- Gri suyun arıtımı daha kirli olan siyah suya göre daha hızlı ve kolaydır; böylelikle ilk yatırım maliyetlerinin düşük olmasına sebep verir.
- Son tüketicilerin fatura bedellerinin düşmesine yardımcı olur.
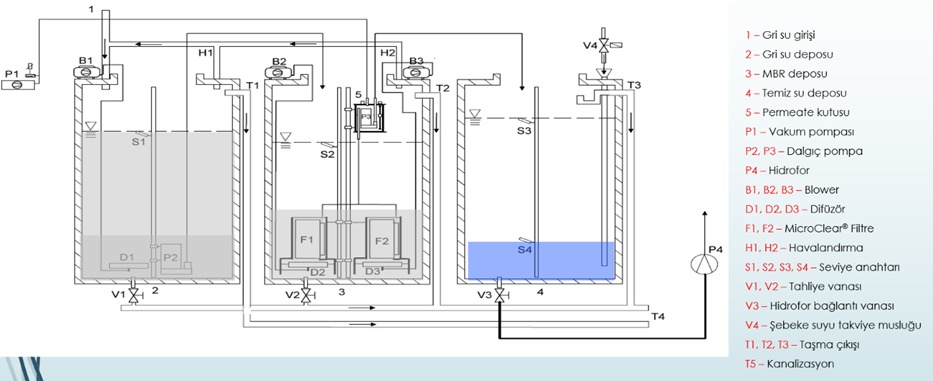
Neden MBR Teknolojisi?
Ülkemizdeki bazı biyolojik atık su arıtma tesislerindeki işletme problemleri, arıtılmış atık suların yeniden kullanım ihtiyacının artması, tesislerin işletme problemlerinin ve enerji maliyetlerinin azaltılması gereksinimi, düşük çamur üretimi ve nutrient giderimi avantajlarından dolayı membran destekli biyolojik arıtma sistemlerinin, diğer bir deyişle membran biyoreaktorlerin (MBR) önemi her geçen gün artmaktadır.
Membran biyoreaktor (MBR) arıtım sistemleri biyolojik arıtım metotlarından biri olan aktif camur prosesini membran ayırma prosesiyle birleştiren sistemlerdir. Klasik aktif çamur proseslerinde havalandırma havuzlarında oluşan biyokütlenin son çökeltme havuzlarında atık su bünyesinden çöktürülerek uzaklaştırılması gerçekleştirilirken, MBR prosesinde ise daha yüksek yoğunluklu bu biyokutlenin membran yüzeylerinde filtre edilmesi suretiyle atık su bünyesinden uzaklaştırılması esası ile çalışır. MBR Teknolojilerinin gri su arıtımında kullanılmasında yatan en büyük etken arıtılmış su kalitesinin yüksek verimli olması (%99.9999 virüs ve bakterilerden arındırılmış su kalitesi), işletme esnasında sağladığı esneklik, düşük alan ihtiyacı, yüksek oranda ayrışma, düşük çamur üretimi, dezenfeksiyon ve koku işleminin daha efektif gerçekleştirilebilmesidir.
Aquagreen gri su arıtma sistemlerinin tasarımı baştan sona müşterinin ihtiyacına göre özel olarak projelendirip üretilmektedir. Yapımda kullanılan tüm ekipmanlar en kaliteli malzemelerden seçilmektedir. Ekipmanların kaliteli olması, sistemlerin uzun süre en yüksek verimde çalışmasını sağlamaktadır.








